PUBLIC SHOWERS

PUBLIC SHOWERS

PUBLIC SHOWERS

LOCATION
VilleUrbanne , Lyon , France

IDEA & CONCEPT
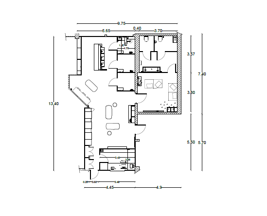
The project aimed to fill a critical gap by integrating public restrooms into an existing space, recognizing the urgent need to address the hygiene challenges faced by those struggling with housing insecurity. Paying particular attention to the needs of women, who often bear a disproportionate burden in such circumstances, we strove to create an inclusive sanctuary where individuals could rediscover a sense of dignity and belonging. Our vision went beyond simply providing amenities; we aspired to cultivate a supportive environment conducive to holistic well-being. This encompassed not only the physical comfort of spacious showers and communal areas, but also the emotional reassurance of knowing one is not forgotten or marginalized by society. Through thoughtful design elements such as designated mother-child areas and laundry facilities, we sought to emphasize the interconnectedness of hygiene with broader notions of self-esteem and social inclusion. Thus, our effort was not just about erecting structures but about building bridges of empathy and solidarity within our community.
Date:
Category:


I’m glad you’re here. Take your time exploring my work, my ideas, and the journey behind each project.

This error message is only visible to WordPress admins

Error: No feed found.

Please go to the Instagram Feed settings page to create a feed.

+330759503665 / +201010187771

Lailasalama.com